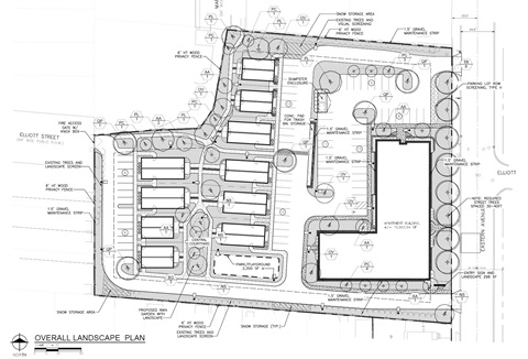
1865 Eastern Ave SE - M Village Condos and Apartments

Details
MVillage, a Messiah Missionary Baptist Church initiative, is seeking approval to redevelop this site to include apartments for rent and townhouses or condominiums to own. They are currently operating a community meeting space and clothing closet in the existing building and are now eager to unveil their expanded vision for the property. There are two opportunities to learn and be heard.
Community Meeting(s)
Location: 1865 Eastern Ave SE
Tuesday, June 18th 6:30pm - 8:00pm
Thursday, August 1st 6:30pm - 8:00pm
Public Hearing // update: APPROVED!
Thursday, September 12th 1pm at City Hall, 300 Monroe Ave NW, 9th Floor
If you cannot attend: Written comments submitted to planning@grcity.us by September 11th will be distributed to the Planning Commission prior to the meeting.
Engagement